Senior Village
at Kettering Town Center
A St. Mary Development / Oberer apartment community in Kettering, Ohio.
Building Design
Architect's rendering

Senior Village at Kettering Town Center Apartment Community
Project Description
The Senior Village is a cooperative effort between St. Mary Development Corporation and the Oberer Companies to provide 52 units of affordable housing for seniors (age 55+) in Kettering, Ohio. This senior apartment community will contain both one- and two-bedroom units. It will be an Energy Star and Enterprise Green Communities Certified Building.
The partnersSt. Mary Development will serve as the developer and supportive services provider. Oberer Companies will serve as co-developer, general contractor and property manager. On-site services and amenities will include service coordination, an exercise room, community room and transportation programs, among others.
A great site for senior apartments.The site is situated within an established mixed-use area in the eastern portion of Kettering and
expected to fit well with the surrounding land uses. Many services are close-by and easily
accessible given the location along Woodman Drive which provides direct access to Dorothy
Lane. The Senior Village is located within a half-mile of a Kroger grocery store, a health clinic,
banking, restaurants and Delco Park, and is within a mile of a senior center. Most services are
also accessible via public transportation provided by the Dayton Regional Transit Authority
which operates a public bus stop directly east of the site. The walkability combined with easy-access bus transportation and developer-provided transportation mean seniors can truly live at Senior Village without owning a car.
Demand for affordable senior housing is high.Senior households age 65 and older are projected to experience growth between 2020 and 2025 and households between the ages of 25 and 64 are expected to comprise approximately 63% of all households in the market through 2025. Senior renter households are projected to increase by nearly 700 households over the next five years. Further, nearly half (48%) of all renter households are projected to earn less than $40,000 in 2025.
Who is St. Mary Development
We are a 32-year-old faith-based non-profit headquartered in Dayton, Ohio. We execute our mission through real estate development and service coordination, building accessible, safe and affordable apartment homes We have developed more than 65 apartment communities in 10 states with more than 4,500 units, although our primary area is Ohio. We are currently building a new apartment community in Portsmouth, Ohio. For more information about St. Mary Development, visit our website.
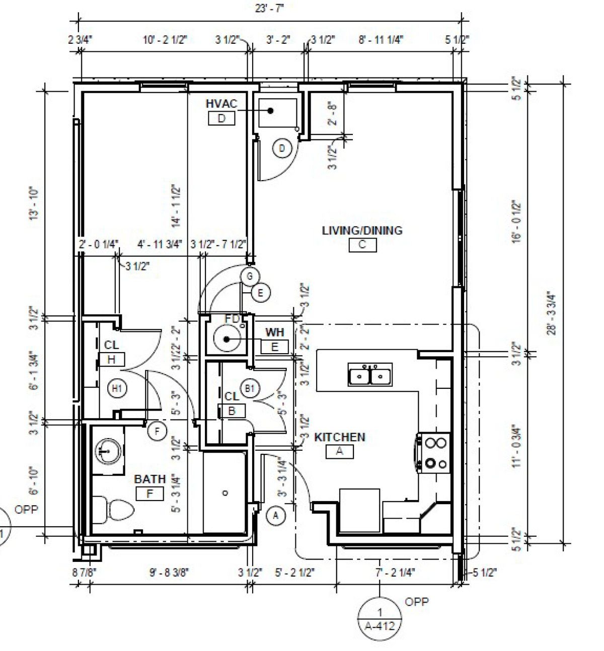
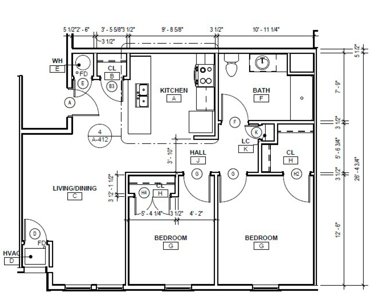
Unit floor plans
Below are floor plans for one- and two-bedroom apartment units.

One-bedroom
(1 bathroom)

Two-bedroom
(1 bathroom)
Reach Out
Share your ideas about this new affordable housing project.
Every comment goes to our President & CEO Wes Young.



